Die ideale Gastronomieeinrichtung, um Maßstäbe zu setzen
Ein Restaurant mit großen Ambitionen bedarf einer entsprechenden Gastronomieeinrichtung. Und das Feinschmeckerrestaurant RARO im Mühlenhof in Schriesheim ist zweifelsohne ambitioniert. Denn hier werden nicht nur kulinarische Maßstäbe gesetzt, was der innerhalb von gerade einmal acht Monaten erkochte grüne Michelin-Stern eindrücklich bescheinigt: Von Anfang an war klar, dass auf den eigenen rund 10.000 m² Anbaufläche auch Lebensmittel in einem Umfang angebaut werden sollen, der die Superlative der Branche in den Schatten stellt. Allein mehr als 750 verschiedene Obst- und Gemüsesorten aus eigener Erzeugung finden den Weg auf die Teller der Gäste. Dazu kommt eine Vielzahl erlesener Kräuter.

Um die ehemalige Schriesheimer Kerzenfabrik in ein Feinschmeckerrestaurant zu verwandeln, waren umfangreiche Umbaumaßnahmen nötig und natürlich musste die Gastronomieeinrichtung hohen Ansprüchen an Gestaltung und Funktion genügen. Deshalb waren mehrere Innenarchitekt:innen und Handwerksunternehmen in das ambitionierte Projekt involviert. Wir wollen uns im Rahmen dieses Projektberichts auf den von uns geplanten und umgesetzten Teil der Gastronomieeinrichtung konzentrieren.
Technische Planung & Betreuung
Wenn wir als Komplettanbieter agieren, sind wir für Planung und Umsetzung komplett verantwortlich. Im RARO jedoch haben wir es mit einem arbeitsteilig organisierten Projekt zu tun. Das Gestaltungskonzept existierte bereits und unsere Aufgabe bestand darin, unsere Planungsanteile innerhalb der gestalterischen Leitplanken zu konzipieren. Sowohl diejenigen, die wir auch final umgesetzt als auch jene, die wir lediglich geplant haben.

Restaurant & Gastronomietheke
Unsere Expertise in Sachen Gastronomietheken konnten wir in der Planung vollumfänglich einbringen: Sowohl im Falle der Haupttheke im Erdgeschoss als auch der Theke im Obergeschoss haben wir die gestalterischen Vorgaben mit den technischen und praktischen Erfordernissen des Restaurants in Einklang gebracht. Zu diesem Zweck haben wir für Theken und Rückschränke Konzepte inklusive Geräteintegration, Installationspläne und 3D-Modelle angefertigt. Auf dieser Grundlage haben wir außerdem einen Bauzeitplan für das Projektleitende Architekturbüro erstellt.

Gastronomieküche
In der Küche steht Funktionalität bekanntermaßen noch stärker im Vordergrund als im Thekenbereich. Und als Spezialisten für die technischen Planung von Gastronomieküchen haben wir in enger Abstimmung mit dem Küchenchef eine Geräteanordnung festgelegt, die die geplanten Abläufe und räumlichen Gegebenheiten in Einklang bringt. Dabei haben wir vorhandene Küchenmöbel integriert. Das Ergebnis unserer Planung haben wir in Installationspläne, Detailzeichnungen und 3D-Modelle überführt. Auch für die Restaurantküche haben wir einen Bauzeitplan angefertigt.

Gastronomietheke im Erdgeschoss
Im Gegensatz zur Theke im ersten Obergeschoss, deren Umsetzung nach Abschluss der technischen Planung vom leitenden Architekturbüro anderweitig vergeben wurde, haben wir die Haupttheke auch final realisiert. Die umfangreiche Thekenanlage ist in drei Zonen aufgeteilt. Von der Gastseite betrachtet sind das von links nach rechts:
- Schanktheke mit Rückschrank
- Pass & Durchgang zur Küche
- Showküche mit Thekenelement

Schanktheke
Gastseitig besticht die Schanktheke durch eine elesgante Steinoberfläche: Das schwarz des satinierten Breccia Nera ist durchzogen von hellen Akzenten, die ihm eine natürliche Dynamik verleihen ohne unruhig zu wirken. Den Abschluss zum Boden bildet ein schwarz pulverbeschichteter Stahlsockel. Serviceseitig sind die Korpen aus matt schwarz beschichtetem Holzwerkstoff sichtbar, in die wir die Gastronomietechnik integriert haben. Auf der linken Seite ein Kühlmöbel mit Drehtür und zwei halbhohen Auszügen. Im Unterschrank rechts befindet sich hinter Stauraum für Leergut und das bauseitig integrierte BWT Tafelwassersystem hinter zwei Schlepptüren. Die rechte Tür besteht aus einer Rahmenkonstruktion mit Lochblech für optimale Belüftung, während wir die linke aus einer matt schwarz beschichteten Holzwerkstoffplatte gefertigt haben. Rechts davon haben wir eine Winterhalter UC-M Gläserspülmaschine integriert. Der Zugriff auf die Gläserspüler-Technik ist ganz einfach durch die matt schwarze Holzwerkstoff-Tür rechts davon möglich. Den Abschluss nach oben bildet eine durchgängige Nero Assoluto Arbeitsplatte mit Ausschnitten für ein Abtropfblech inklusive Unterbau oberhalb der Tafelwasseranlage, ein Edelstahl-Handwaschbecken mit Armatur rechts davon und ein weiteres Abtropfblech in Spülkorbgröße über der Gläserspülmaschine.

Schanktheken-Rückschrank
Hinter der Schanktheke komplettiert eine umfangreiche Rückschrankwand den Arbeitsbereich. Der Abstand zur Theke wurde so bemessen, dass Laufwege minimiert werden und dennoch Servicekräfte problemlos aneinander vorbeikommen. Wie bei der Theke bestehen die Korpen und Fronten der Unterschränke aus matt schwarz beschichtetem Holzwerkstoff. Auf der linken Seite haben wir einen Hoshizaki IM-21CNE HC Eisbereiter integriert. Im Anschluss daran gibt es reichlich Stauraum hinter drei Drehtüren mit höhenverstellbaren Fachböden. Rechts davon befindet sich ein Unterschrank mit Müllauszug, an den ein weiterer Unterschrank mit Drehtür und Schublade angrenzt. Letztere dient als Satzschublade für die darüber befindliche Kaffeemaschine. Daneben haben wir ein Kühlmöbel mit sechs halbhohen Auszügen integriert. Das Besondere: Deren Fronten sind passend zu Sockeln und Möbelfronten matt schwarz pulverbeschichtet. Den Abschluss bildet ein weiteres Unterschrank-Element mit Schubkasten und Drehtür. Auch auf den Unterschränken ruht eine 20 mm starke Arbeitsplatte in Nero Assoluto. Darüber haben wir auf der linken Seite ein offenes Regal mit Sichtrückwand aus Holzwerkstoffplatten mit schwarz gebeiztem und zweifach matt lackiertem Eichenfurnier konstruiert. Dessen Oberkante haben wir in die Schräge der Treppe zum Obergeschoss eingepasst. In der Nische rechts davon haben wir die Unterkonstruktion für den bauseitig umgesetzten Fliesenspiegel geliefert, die oberhalb des Kühlmöbels von einer Durchreiche mit Hubmechanik unterbrochen wird, die wir mit einer höhenverstellbaren Wärmebrücke mit 3 IRK-Halogen-Infrarot-Quarzstrahlern á 400 Watt ausgestattet haben. Oberhalb der Nische erstrecken sich Hängeschränke mit höhenverstellbaren Fachböden hinter Drehtüren über die restliche Breite der Unterschrankzeile. Deren Fronten bestehen ebenfalls aus mit schwarz gebeiztem und mit Schleiflack matt lackiertem Eichenfurnier belegtem Holzwerkstoff. Für optimale Sichtverhältnisse auf der Arbeitsplatte sorgen insgesamt 2,8 Laufmeter LED-Strips als Oberschrankbeleuchtung.


Pass & Durchgang zur Küche
Im Anschluss an den Schanktheken-Rückschrank befindet sich der Durchgang zur Küche. Hier haben wir eine matt schwarze Schiebetür installiert, die sich automatisch öffnet und schließt, sodass sie nicht länger als nötig offensteht und Servicekräfte sie einfach mit vollen Händen passieren können. Von der Küche aus läuft man direkt auf den Pass zu, den wir als Insel ausgeführt haben, an der vorbei das Personal bequem in den Gastraum gelangen kann, auch wenn dort Speisen angerichtet werden. Die zentrale Rolle des Passes wird auch optisch hervorgehoben. Er steht nicht nur über die Flucht der Thekenfronten heraus, die hellen Fronten in matt lackiertem Eichenfurnier auf der Gastseite und an den Wangen heben sich auch deutlich vom vorherrschenden schwarz ab. Gastseitig dienen zwei offene Regalfächer gleichermaßen als Stauraum und Präsentationsfläche. Serviceseitig haben wir einen Wärmeschrank mit Schiebetüren und zwei Steckdosen neben einem offenen Edelstahlregal mit zwei Fachböden auf der rechten Seite installiert. Die Verbindung zur Materialität des übrigen Thekenbereichs entsteht durch die 20mm starke Nero Assoluto Arbeitsplatte mit Ausschnitt für eine Wärmeplatte mit schwarzem Glasfeld. Insgesamt 12 einzeln stufenlos höhenverstellbare Wärmeleuchten mit 250W Infrarot-Weißlichtstrahlern hängen in drei Viererzeilen an Spirakabeln über der Arbeitsfläche und garantieren so, dass die Speisen perfekt temperiert bei den Gästen ankommen.

Showküche
Rechts der automatischen Schiebetür schließt direkt die Showküche an. Wenngleich ein Großteil der „Magie“ in der Gastronomieküche dahinter stattfindet, können hier vor den Augen der Gäste bestimmte Speisen zubereitet oder finale Zubereitungsschritte ausgeführt werden, was interessante Einblicke in die Arbeit der Profiköche gewährt, die dem Publikum eine noch tiefere Wertschätzung der kulinarischen Kreationen ermöglichen. Neben dem Spülenunterschrank mit Mülleimerauszug auf der linken Seite befindet sich ein Fach für den Hold-O-Mat, ein professionelles Warmhalte- und Niedertemperatur-Gargerät. Rechts davon haben wir ein Kühlmöbel mit einer Drehtür und drei installiert. Auch diese Gerätefronten sind matt schwarz pulverbeschichtet. Oberhalb der Schiebetür und der Nero Assoluto Arbeitsplatte mit Ausschnitt für ein Handwaschbecken und Armatur setzen sich die Hängeschränke mit Drehtüren mit höhenverstellbaren Fachböden über 3 m fort. Auch hier haben wir in der Nische die Unterkonstruktion für den bauseitig realisierten Fliesenspiegel montiert. An der Nischenrückwand haben wir zudem zwei pulverbeschichtete Metall-Wandboards angebracht. Links zwischen Durchgang und Wandboard haben wir einen Salvis Salamander Classic SSR HLC-G an der Wand montiert. Rechts der Showküche bildet eine Anrichte aus matt schwarz beschichtetem Holzwerkstoff mit offenem Stauraum darunter den Abschluss zur Wand.

Thekenelement
Gegenüber von Showküche und Anrichte erstreckt sich ein 3,2 m breites Thekenelement mit gastseitiger Frontverkleidung in Breccia Nera mit gebührendem Abstand vom Pass bis zur Wand auf der aus Gastperspektive rechten Seite. Unten an der eingerückten Front haben wir eine zum Sockel passend schwarz pulverbeschichtete Fußreling installiert. Serviceseitig reichen offene Unterschränke mit Fachböden aus mattschwarz beschichteter Holzwerkstoffplatte von der rechten Thekenkante bis zum Tiefkühlschrank am anderen Ende. Ein Stück oberhalb der Nero Assoluto Arbeitsplatte haben wir ein matt lackiertes Massivholzbarbrett mit Baumkante zur Gastseite aufgesetzt.
Immer auf dem Laufenden
Abonnieren Sie unseren Newsletter und erhalten Sie alle ein bis zwei Monate interessante Berichte und eindrucksvolle Impressionen zu unseren aktuellen Projekten und Aktionen sowie alle wichtigen Neuigkeiten.
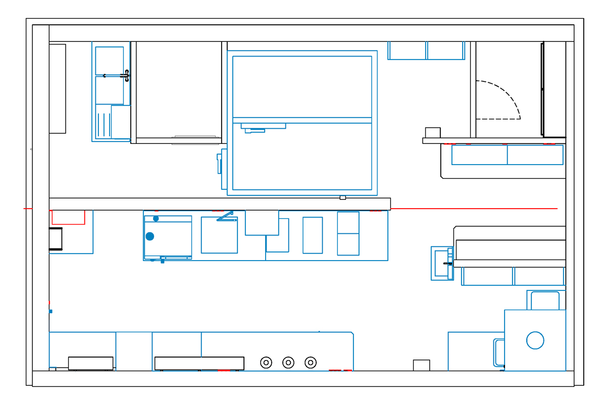
Küche
Wie bereits erwähnt passiert die tatsächliche „Magie“ in der Küche hinter der automatischen Schiebetür. Tritt man hindurch, so steht man unter einem HPL-belegten Stauraumschrank mit Zwei Drehtüren oberhalb des Durchgangs und blickt halb links auf die Herdanlage, das funktional und auch hinsichtlich der Position zentrale Element der Gastronomieküche.

Herdanlage
Von der rechten Kante der Herdanlage bis zur linken Wand verläuft eine Trennwand über etwa zwei Drittel der Raumbreite, die ihn in der Tiefe ungefähr halbiert. Links der Herdanlage ist ein Durchgang zum Wareneingang ausgespart, neben dem noch ein Schockfroster und ein Hängeschrank Platz finden. Bei der Herdanlage an sich handelt es sich um einen Sonderbau mit 3 mm starker Tischplatte, abgekantet, schallgedämmt und unterfüttert mit geklebten CNS-Verstärkungsprofilen. In die Arbeitsfläche integriert sind – am rechten Ende beginnend – ein Induktionsherd mit acht Sauteusenspulen, links davon eine Elektro-Griddlerplatte mit stufenloser Temperaturregelung und daneben ein weiterer Induktionsherd mit vier Kochfeldern. Am linken Ende der Anlage haben wir einen Konvektomat von Rational installiert. Die Unterschränke auf Edelstahl-Fußgestellen beinhalten von links nach rechts einen Gastronormschrank mit Einschubschienen für Behälter und Roste an insgesamt vier herausnehmbaren Einschubleitern gefolgt von einem beidseitig offenen Arbeitsschrank mit Bodenbord. Daran schließt ein Schubladenblock mit drei herausnehmbaren Kastenschubladen an. Daneben, unterhalb der Kochfelder finden sich drei beidseitig offene Arbeitsschränke mit Bodenbord und höhenverstellbarem Zwischenbord. Auf Kundenwunsch wurde die Tiefe der Tischanlage von 800 auf 900 mm geändert und die Höhe von 4300 auf 4400 mm. An der Wand über dem Herdblock haben wir einen Salvis Salamander Classic montiert.

Arbeitsfläche & Durchreiche
An der Wand gegenüber der Herdanlage befindet sich rechts des Durchgangs zur Gastronomietheke eine 5,5 Meter lange Küchenarbeitsplatte mit einem Hochzug von 100 mm zur Wand – ausgeklinkt für die Durchreiche. Diese verfügt über einen Schiebeverschluss mit schwarz gebeiztem und matt lackierter Eichenfurnier-Oberfläche, bis zu dessen Führungsschiene die von uns montierte und bauseitig geflieste Trockenbau-Unterkonstruktion verläuft. Ganz links darunter haben wir einen Wärmeschrank eingebaut. Daran anschließend stehen zwei Bestands-Kühlmöbel. Den Abschluss nach rechts zur Wand bildet ein Installationsfach mit Edelstahl-Drehtür. Oberhalb der Arbeitsfläche rechts der Durchreiche haben wir zwei übereinander angeordnete, 1600 mm breite höhenverstellbare Wandboards aus Edelstahl montiert. Daneben einen Rational iCombi Pro XS Kombidämpfer mit iCombi UltraVent Kondensationshaube, auf den zwei weitere übereinander liegende Edelstahl-Wandboards mit einer Breite von 800 mm folgen.

Spülküche
Mit Blick auf die Durchgangstür zur Gastronomietheke links befindet sich die Bestands-Spülküche mit Schlauchpendelbrause. Gegenüber erstreckt sich entlang einer etwas mehr als zwei Meter breiten Trennwand ein geräumiges Lagerregal.
Kalter Posten
Auf der anderen Seite der Trennwand befindet sich der kalte Posten. Über deren gesamte Breite verläuft ein Edelstahl-Arbeitstisch mit zwei Unterbauschränken mit Schiebetüren und je zwei höhenverstellbaren Fachböden sowie einer Edelstahl-Arbeitsplatte mit zweiseitigem Hochzug von 100 mm. Darüber haben wir zwei höhenverstellbare Wandboards mit Hochzug montiert. An der gegenüberliegenden Wand befindet sich eine Edelstahl-Arbeitsfläche mit zweiseitigem Hochzug von 100 mm, unter der links ein schmaler Schubladenblock mit drei Schubkästen untergebracht ist, an den zwei Kühlschränke und ein Tiefkühler anschließen. Darüber hängen zwei Schiebetüren-Hängeschränke aus Edelstahl mit je einem höhenverstellbaren Fachboden und einer Breite von jeweils 1000 mm.
Hygienestation
Stirnseitig an der Trennwand zwischen kaltem Posten und Spülküche, der Herdanlage zugewandt, befindet sich die Hygienestation. Dabei handelt es sich um ein 600 mm breites Edelstahl-Unterbaumöbel mit Mülleimer und integrierter Rückwand sowie einem Edelstahl-Handwaschbecken mit Einhebel-Spültischbatterie. Letztere verfügt über einen langen Hebel zur Ellenbogen-Bedienung. Auch Handtuchspender, Desinfektionsmittelspender und Seifenspender lassen sich mit dem Ellenbogen bedienen, sodass sich hygienisches Arbeiten besonders einfach gestaltet.

Wareneingangsbereich
Passiert man den Durchgang links der Herdanlage, tritt man in den Wareneingangsbereich. Dort befindet sich ein Spültisch mit Doppelspülbecken. Die Becken messen jeweils 500 x 500 x 400 mm. Rechts der Becken befindet sich ein Abtropfblech, zur Wand hin ein 300 mm Hochzug. Vervollständigt wird der Spültisch durch eine KWC Schlauchpendelbrause. Ein Edelstahlunterbau mit Grundboden sowie frontseitigem Schiebetürverschluss sorgt für Stauraum, der durch einen Edelstahl-Wandhängeschrank mit höhenverstellbarem Fachboden und Drehtür über dem Abtropfblech ergänzt wird. Ein Klappboard an der gegenüberliegenden Wand dient als optionale Stellfläche.


Kombi-Kühlzelle
Geht man rechts am Wareneingangsbereich vorbei, blickt man direkt auf die Tür der Kombi-Kühlzelle. Die Gesamtaußenmaße der Kühlzelle belaufen sich auf 2700 x 2600 x 2200 mm (BxTxH). Durch die Außentür gelangt man ins im Innern 2500 x 1200 x 2000 mm messende Kühlabteil. Von dort führt eine weitere Tür in die Tiefkühlzelle. In der gesamten Kombi-Kühlzelle sorgt ein Boden aus Edelstahl-Tränenblech für maximale Rutschfestigkeit, während eine minimale Fugenzahl garantiert, dass der Innenraum besonders leicht zu reinigen ist. Für die notwendige Struktur haben wir geräumige Edelstahlregale eingebaut.
Innenarchitekt
Simon Schlör (DIA – Design In Architektur)
& Hammer Margrander Interior
Innenausbau
Hammer Margrander Interior
Vor Ort
RARO im Mühlenhof
Talstraße 188
69198 Schriesheim
Sie sehen gerade einen Platzhalterinhalt von Google Maps. Um auf den eigentlichen Inhalt zuzugreifen, klicken Sie auf die Schaltfläche unten. Bitte beachten Sie, dass dabei Daten an Drittanbieter weitergegeben werden.
Mehr Informationen


